登录-栖凤楼论坛,51品茶茶馆儿论坛,一品楼全国论坛闲聊,风楼阁全国信息2025登录入口

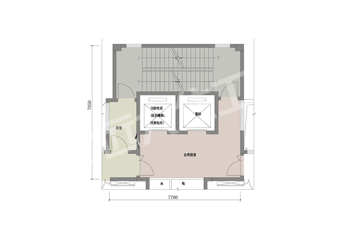
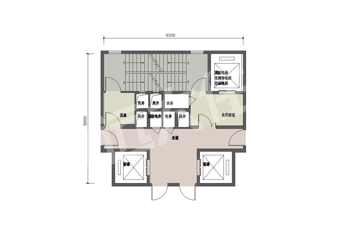
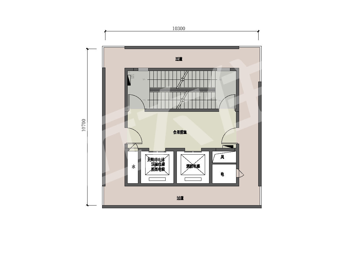
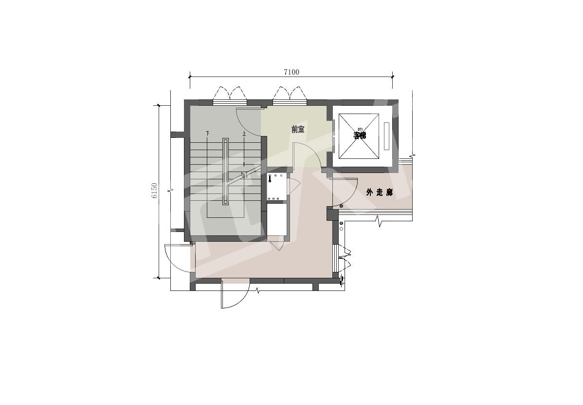
功能???核心筒